Tổng quan dự án

Cụm công nghiệp Hồng Việt thuộc địa giới hành chính xã Hồng Việt, Thăng Long, Minh Tân, huyện Đông Hưng, tỉnh Thái Bình. Dự án có vị trí thuận lợi các trung tâm TP Thái Bình khoảng 16km về phía Đông Nam và cách thành phố Nam Định khoảng 20km về phía Tây Nam.
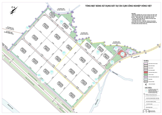
I. TỔNG QUAN DỰ ÁN CỤM CÔNG NGHIỆP HỒNG VIỆT – THÁI BÌNH
2SLAND giói thiệu tổng quan về cụm công nghiệp Hồng Việt – Thái Bình đang hoàn thiện xây dựng cơ sở hạ tầng nội khu, sẵn sàng bàn giao ngay cho nhà đầu tư xây dựng nhà máy
- Tên: Cụm công nghiệp Hồng Việt
- Quy mô diện tích quy hoạch: 70 ha.
- Địa điểm: Xã Hồng Việt, Thăng Long, Minh Tân – Huyện Đông Hưng – Tỉnh Thái Bình
- Thời hạn: 50 năm (2022-2072)
- Hoàn thành: 2025
- Ngành nghề: Tổng hợp đa ngành, chủ yếu là công nghiệp chế biến, chế tạo ít gây ô nhiễm môi trường như: Cơ khí; thiết bị điện, điện tử; dệt may; chế biến nông sản, thực phẩm; sản xuất dược phẩm; thiết bị, đồ dùng y tế; sản xuất hàng tiêu dùng; nhà xưởng cho thuê; công nghiệp hỗ trợ và dịch vụ sản xuất công nghiệp …
TỔNG QUAN THÁI BÌNH
- Dân số 1.873.890 người, riêng Huyện Đông Hưng dân số là 246.630 người (2021)
- 919 nghìn người trong độ tuổi lao động với tỷ lệ được đào tạo trên 30%
- Nguồn lao động trong bán kính 3km vào khoảng 45.000 người
- Giáp các tỉnh Hải Phòng – Hải Dương – Hưng Yên – Nam Định – Hà Nam, phía đông giáp biển Đông
- Nằm trong Quy hoạch chung xây dựng Khu Kinh tế Thái Bình
II. Vị trí địa lý cum công nghiệp Hồng Việt – Thái Bình
Các tuyến đường giao thông đối ngoại chính như QL 39A kết nối với các khu vực xung quanh, kết nối với tuyến QL10 về phía Đông và DT 223 về phía Tây. Kết nối với tuyến cao tốc Hà Nội, Ninh Bình về phía Tây bằng tuyến đường Thái Bình – Hà Nam và tuyến QL 39A

- Gần khu kinh tế Thái Bình – trọng điểm phát triển vùng đồng bằng sông Hồng
- Trung tâm trục tam giác kinh tế Hà Nội – Thái Bình – Hải Phòng
- 80km đến cảng quốc tế Đình Vũ – Lạch Huyện
- 80km đến Hà Nội
- 100km đến sân bay quốc tế Nội Bài
- 3h30’ đến cửa khẩu quốc tế Móng Cái
- 4h đến cửa khẩu quốc tế Tân Thanh
III. Môi trường đầu tư tại cụm công nghiệp Hồng Việt – Thái Bình
Theo các nhà đầu tư hạ tầng, việc quyết định đầu tư vào CCN Hồng Việt là do môi trường đầu tư sản xuất, kinh doanh thuận lợi; cấp ủy đảng, chính quyền và các phòng, ban chức năng của huyện, các xã, thị trấn luôn đồng hành, tạo mọi điều kiện cho nhà đầu tư triển khai dự án. Không chỉ làm tốt công tác giới thiệu tiềm năng, lợi thế của các CCN, xúc tiến thu hút đầu tư, UBND tỉnh Thái Bình chỉ đạo đẩy mạnh cải cách thủ tục hành chính trong lĩnh vực đầu tư, kịp thời tháo gỡ khó khăn cho doanh nghiệp.
- Ưu đãi miễn tiền thuế đất 7 năm
- Áp dụng giá thuê đất thống nhất đối với các doanh nghiệp trong nước và nước ngoài với thời hạn cho thuê kéo dài 50 năm.
IV. Cơ sở hạ tầng cụm công nghiệp Hồng Việt – Thái Bình

Giai đoạn I: Từ Quý IV năm 2023 đến hết Quý IV năm 2024
Hoàn thành giải phóng mặt bằng khoảng 28,6ha, xây dựng đồng bộ hạ tầng kỹ thuật cụm công nghiệp; trong đó có trạm xử lý nước thải tập trung và tuyến đường kết nối, đuờng gom quy hoạch cao tốc CT16 với Quốc lộ 39A; thu hút nhà đầu tư thứ cấp, lấp đầy 100% diện tích đất công nghiệp giai đoạn I
Giai đoạn II: Từ năm 2024 – 2025
Hoàn thành giải phóng mặt bằng khoảng 41,1ha, xây dựng hoàn thiện đồng bộ hạ tầng và thu hút nhà đầu tư thứ cấp, lấp đầy 100% diện tích đất công nghiệp giai đoạn II
V. Chi phí và ưu đãi tại Hồng Việt – Thái Bình

- Miễn tiền thuế đất 7 năm
- Thuế đất đóng hàng năm theo quy định của nhà nước
- Tiền thuê hạ tầng được thanh toán 1 lần trong suốt chu kỳ thuê
- Miễn thuế nhập khẩu đối với hàng hóa để tạo ra tài sản cố định (máy móc thiết bị và linh
kiện, chi tiết, vật liệu mà chưa thể sản xuất được trong nước…) (Theo nghị định
87/2010/NĐ-CP)
- Miễn thuế chuyển lợi nhuận ra nước ngoài (theo nghị định 186/2010/NĐ/CP)
- Ngân hàng tham gia đồng hành và các ưu đãi đặc biệt dành cho các nhà đầu tư
Ưu đãi đầu tư của chủ đầu tư hạ tầng:
- Khi đầu tư vào CCN Hồng Việt, nhà đầu tư sẽ được hỗ trợ tư vấn và hoàn thiện các thủ tục xin phê duyệt chủ trương và cấp Giấy chứng nhận đăng ký doanh nghiệp của tỉnh Thái Bình.
- Hỗ trợ doanh nghiệp xin cấp giấy phép xây dựng để xây dựng nhà máy.
- Tư vấn và thi công xây dựng nhà xưởng với thời gian ngắn và chi phí tiết kiệm nhất.
2SLAND – Tư vấn và xúc tiến đầu tư bất động sản công nghiệp
Việc lựa chọn đúng đơn vị tư vấn là một trong những yếu tố then chốt trong sự thành công của một dự án đầu tư tại Việt Nam. Với đội ngũ chuyên viên giàu kinh nghiệm, nguồn hàng trải dài khắp cả nước và hệ sinh thái dịch vụ chất lượng cao, 2sland cam kết mang đến cho Quý khách hàng giải pháp đầu tư hiệu quả và tối ưu nhất.
Để được tư vấn chi tiết về cơ hội đầu tư tại Cụm công nghiệp Hồng Việt, liên hệ ngay với chúng tôi